Бытовка будка охраны модель: ВМ-БТ07

( 9 )
Нет на складе
Есть в наличии
0
266 760
+
Способы доставки
  • Самовывоз
  • Другие транспортные службы
Способы оплаты
  • Наличными при получении
  • Безналичный перевод
Описание

Бытовое помещение контейнерного типа

 

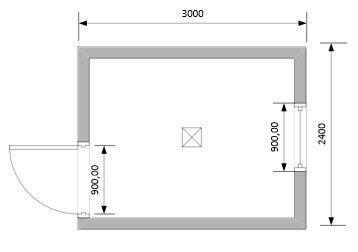
Размеры:

 Внешние:

Д х Ш х В: 3.0 х 2.4 х 2.5 м.

Масса:

Не более 2000 кг.

Каркас, несущий:

Металлический, сварной, усиленный.

Кровля:

Односкатная. Оцинкованный профлист МП-20.

Отделка:

Наружная:

Оцинкованный профилированный лист С-8

Внутренняя:

Стены / Потолок – OSB 9 мм.

Утепление:

Стены: Минеральная плита. Толщина – 100 мм. Паро-гидроизоляционная пленка «Изоспан» или аналог.

Потолок: Минеральная плита. Толщина – 100 мм. Паро-гидроизоляционная пленка «Изоспан» или аналог.

Пол:

Оцинкованный лист. Утепление 100 мм (Минеральная вата). Пароизоляция тип «В». Доска 40х100 мм. ОСБ 12 мм. Линолеум / Плинтус ПВХ

Входная группа:

Металлическая дверь 900х2000 мм, заводского изготовления (Россия), с врезным замком, ручкой прижимом.

Окраска:

Каркас: грунт-эмаль по металлу, цвет светло-серый (RAL7004)

Окна:

ПВХ, 900 х 900 мм, однокамерный стеклопакет, поворотно-откидное – 1 шт.

Электропроводка:

Кабель медный ВВГнг 3 х 2.5 мм (розетки).

Кабель медный ВВГнг 3 х 1.5 мм (освещение).

Уложен в ПВХ кабель-канал (наружным способом).

Выключатель одноклавишный – 1 шт.

Розетка двухместная – 1 шт.

Светильник светодиодный – 1 шт.

Автоматический выключатель 25А – розетки.

Автоматический выключатель 10А – светильники.

Отзывы
Пока нет комментариев
Написать отзыв
Имя*
Email
Введите комментарий*
Обсудим ваш проект?
Имя*
Email
Введите сообщение*